Производственный комплекс в Минске снова выставлен на аукцион
13 апреля состоятся торги, на которых в очередной раз попытаются реализовать объекты недвижимости ОАО «Мотовело». Об этом сообщает сайт Office Life.
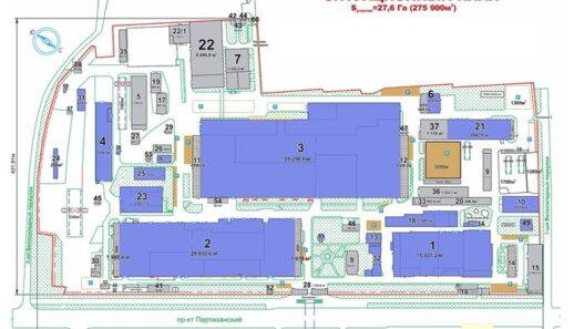
Источник: Центр промышленной оценки
Аукцион собирается провести компания «ИПМ-Консалт оценка». Потенциальным покупателям предложат склады, старые цеха и другие производственные сооружения, расположенные на пр. Партизанском в белорусской столице. Общая площадь земельного участка составляет примерно 27,6 га.
На этот раз комплекс зданий ОАО «Мотовело» планируют продать с заметной скидкой (примерно 20%). Если в октябре прошлого года начальная стоимость этой недвижимости составляла около 89 млн. руб., то в настоящее время она снижена примерно до 71,4 млн. руб.
Игорь Прохоров
